Drevená pergola ODENSE XL 550x378 cm typ 2 s čiernymi stenami Tuindeco
Kód: 46.1122ZWPodrobný popis
Snívate o priestrannej pergole, ktorá je elegantná a ideálna na sledovanie západu slnka? Alebo si pohodlne posedieť s rodinou a priateľmi a opekať si? Potom ste našli presne to pravé s plochou strechou Odense XL Type 2. Vďaka veľkorysej ploche 550 x 378 cm máte dostatok miesta na umiestnenie sedacej súpravy, do ktorej sa zmestia vaši blízky. Zadná stena Odense XL Type 2 je vybavená klinovými profilovými doskami na jednej strane nastriekanými na čierno. Na ľavej strane je malá balustráda a je tak malým vizuálnym zvýraznením a v kombinácii s čiernou zadnou stenou pôsobí veľmi elegantne.

Verzie:
natural - je vyrobený z ošetreného červeného dreva dreva
čiernej farbe - je vyrobený z ošetreného dreva, keďže klinové debniace dosky sú upravené v čiernej farbe
Drevo červenej triedy
Červená trieda je nová impregnovaná „drevina“, ktorá má vzhľad borovice, no nemá rovnaké negatívne vlastnosti. Červená trieda je vďaka umelému sušeniu rozmerovo stabilnejšia. Drevo červenej borovice je impregnované drevo. Toto drevo si zachováva svoj tvar, pretože bolo umelo vysušené, čo výrazne znižuje kontrakciu a rozťahovanie dreva. Nie je živicové ako drevo Douglas.
Rozmer
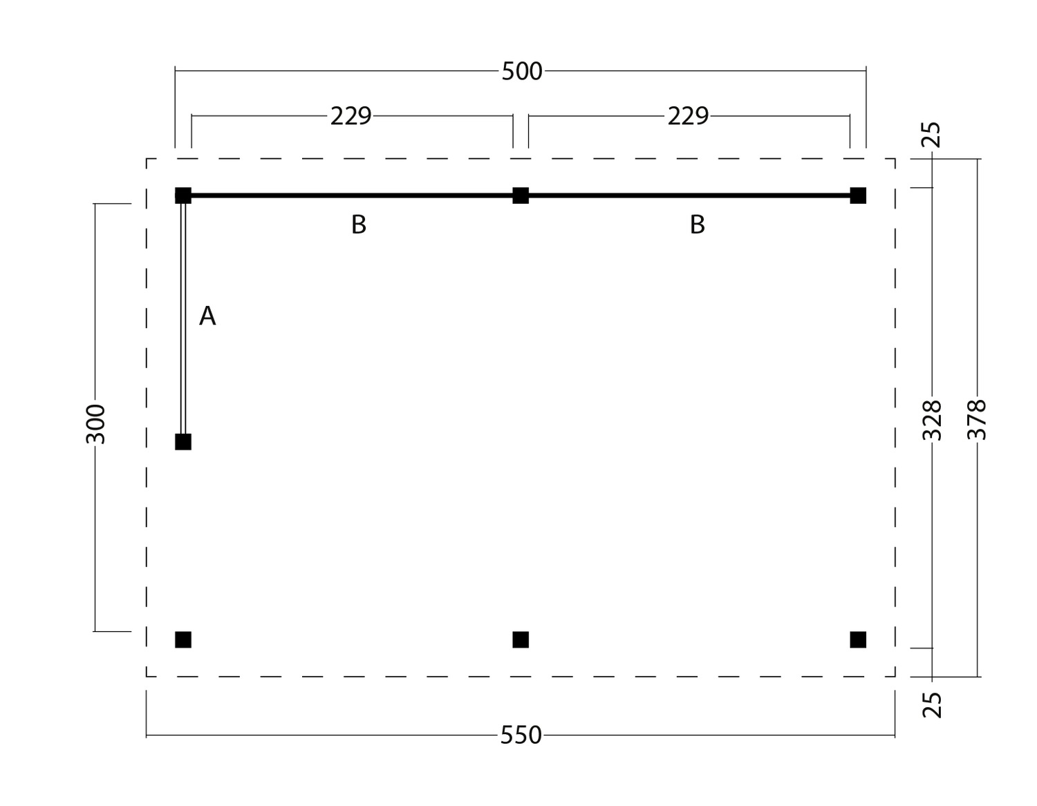
Táto pergola Odense XL Type 2 s rovnou strechou má hĺbku 378 cm, šírku 550 cm a výšku 266 cm. Táto luxusná drevená záhradná pergola má pevné spojenie a dodáva sa s podperami pre stĺpiky. Rozmery základu samostatne stojacich borovicových stĺpov sú 500 x 328 cm.

Strešná krytina
Strecha Odense XL Type 2 s čiernou zadnou stenou je štandardne dodávaná s fóliou EPDM. EPDM je odolnejší ako tradičná strešná lepenka, pretože je vyrobená z gumy a je vhodná na ploché strechy, ako aj strechy s miernym sklonom. Aby plochá strecha pekne zavŕšila, odporúčame pripevniť aj krajnicové plechy, ktoré sú súčasťou balenia.
Technické parametre
| Celkový rozmer so strechou | š.550xhl.378xv.266 cm |
| Celkový rozmer pôdorys | š.500xhl.328 cm |
| Celková výška priechodu | 224 cm |
| Počet stĺpikov | 7 |
| Rozmer stĺpikov | 14,5x14,5 cm |
| Typ strechy | rovná |
| Strešná krytina | EPDM |
| Materiál steny | ošetrené červené drevo čiernej farby |
| Materiál | červené drevo |
| Povrchová úprava | hobľované |
| Montážny výkres | áno |
| Montážny materiál | vrátane |
Tipy
Pergolu Odense XL môžete podľa vlastného uváženia rozšíriť. Záhradný prístrešok Odense od Tuindeco je dostupný aj v iných rozmeroch a prevedeniach, ako napríklad viac stien (čierne alebo svetlé) alebo extra záhradný prístrešok s uzamykateľnými dverami a s oknom alebo bez neho.
Obsah balenia
- Základná konfigurácia
1 x pergola Odense typ 2 XL s čiernými doskami (rozmery: š.550 x hl.378cm, Trio lepené stojky: 14x14cm, trio lepené prstencové nosníky: 14x14cm, strešná konštrukcia väznice: 6,5 x 17,5cm, vzpery: 6,5 x 14cm, strešný obklad: 1,8 x 14,5 cm, fascia rám: 28 cm Typ 28 cm, rámové dosky 28 cm : červená trieda
- Strešná krytina
1 x sada EPDM 25 (vrátane lepidla) 720x520cm
- Strešný kanál
1 x Strešný kanál okrúhly
- Obloženie strechy
8 x Hliníková strešná lišta antracitová4 x hliníková strešná lišta vonkajšieho rohu antracit
- Ukotvenie
7 x držiak stĺpikov nastaviteľný 14-20 cm
V prípade inej konfigurácie alebo otázok nás neváhajte kontaktovať na tel.čísle 00421/911 013 960 alebo emaile info@pohodanatearse.sk.
Dodatočné parametre
| Kategória: | Drevené pergoly |
|---|---|
| Záruka: | 2 roky |
| Hmotnosť: | 195 kg |
Buďte prvý, kto napíše príspevok k tejto položke.





